SPINNEY HOLIDAY LODGE,
2 bedroom
Think of a cosy and homely lodge with unique design features and a contemporary twist and you won’t be far away from imagining the Spinney! The exterior styling has a lovely welcoming feel created by a cottage-style front door, picture windows and CanExel, Ced’R-Vue, 9” lap cladding.
Inside, distinctive design features include the wetroom area with freestanding bath and separate shower to the en-suite, and practical wall niches to the bedrooms; it’s comfort and style for everyone in this lodge.
View this lodge on the Grantshouse Leisure Park feature under current projects, or download the PDF directly here.







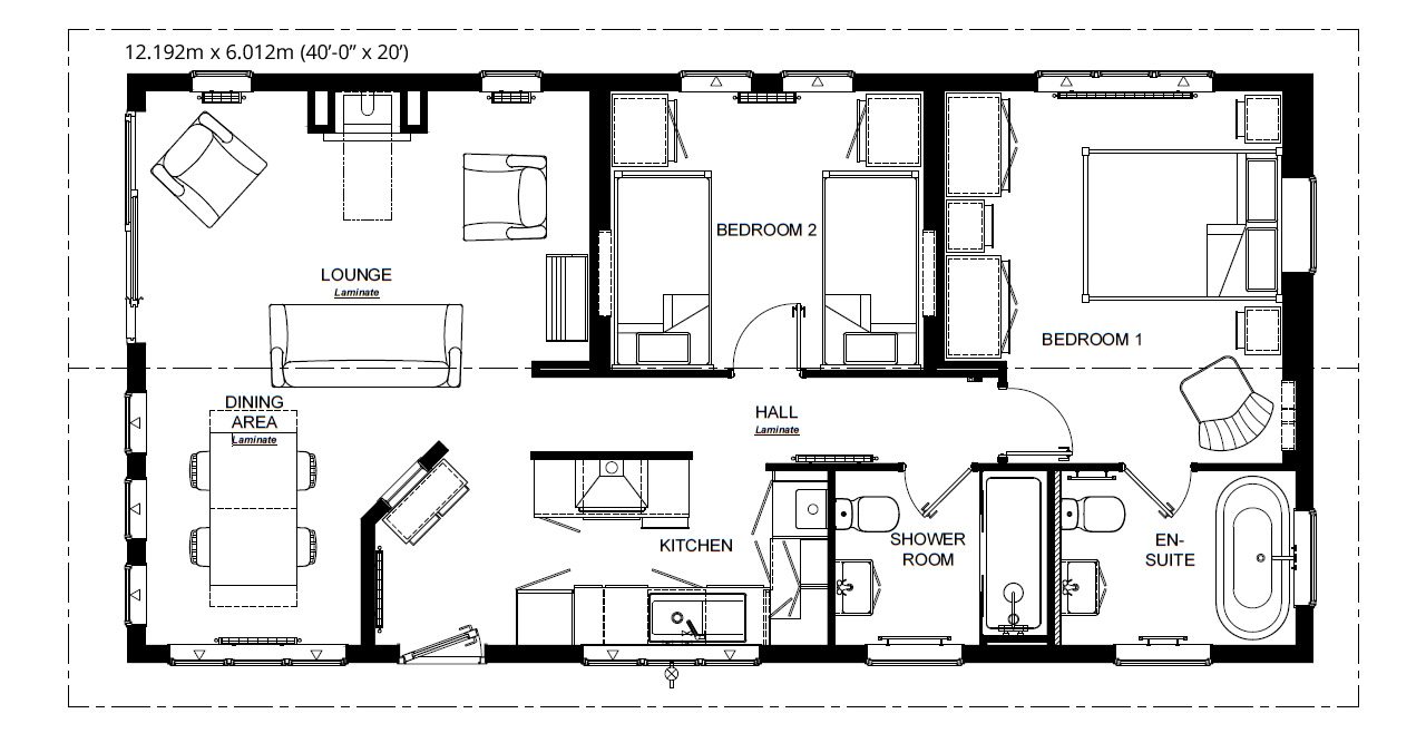
EXAMPLE FLOORPLAN
The Spinney is available in a range of standard floor plans which can be adapted to suit your individual needs.
The minimum size for this model is 40’ x 20’ and the maximum size is 50’ x 22’.
– CanExel, Ced’R-Vue, 9” lap cladding (other colours and claddings available)
– Patio doors to the lounge and full-height windows to the dining area
– Vaulted panelled ceilings throughout
– Oak internal doors
– 3-seater wingback-style sofa and two armchairs
– False chimneybreast with distressed oak mantel and electric stove set on a led hearth
– Rustic dining table and benches over-lit by a designer black gold, industrial pendant light
– Semi-open-plan kitchen with borrowed light
– Master bedroom with feature lighting, panelled walls with wall niches and four poster bed
Please note: Decking and props are not included, some photos may include optional extras or specifications and layouts may differ from those shown here.
For full details, please contact our sales team.




